logo
logo

ProjectDự án

HOMETRANG CHỦ PROJECTDỰ ÁN TEAMTHÀNH VIÊN CONTACTLIÊN HỆ
  • Concept
  • Drawing
  • Construction Diary
  • Thiết kế ý tưởng
  • Triển khai hồ sơ bản vẽ
  • Giám sát công trường

Honey Office

Hạng mục: Thiết kế thi công kiến trúc nội thất

Địa điểm: 18-20 đường số 5, phường An Lợi Đông, Thủ Đức, Hồ Chí Minh

Diện tích: 85 m2

Năm: 2025

Khách hàng: Anh Dũng – Chị Hiền

Nhóm thiết kế: Lưu Quốc Thịnh, Nguyễn Hồng Ngọc, Phạm Huy Phước

Giám sát công trường: Phạm Huy Phước

Chi phí: 450.000.000 VND

Thu Thiem Property

Tái định nghĩa cách không gian tạo nên giao tiếp trong một văn phòng bất động sản hạng sang

Nhắc đến một văn phòng môi giới bất động sản, không ít người sẽ hình dung về một khung cảnh xô bồ, nơi các sản phẩm có giá trị lớn được trao đổi trong bầu không khí gấp gáp và nặng tính giao dịch. Trong nhiều trường hợp, văn phòng môi giới mang dáng dấp của một sàn giao dịch chứng khoán thu nhỏ, nơi hiệu suất bán hàng và mật độ nhân sự lấn át trải nghiệm không gian và chất lượng tương tác giữa con người với con người.

... Tuy nhiên, khi phân tích cấu trúc ngành nghề, môi giới bất động sản thực chất bao gồm nhiều phân khúc với những cách tiếp cận khách hàng hoàn toàn khác nhau: từ môi giới tự do mang tính chụp giật, môi giới phổ thông, sàn giao dịch quy mô lớn cho đến các nhà phân phối bất động sản hạng sang. Ở phân khúc cao cấp, vai trò của người tư vấn không dừng lại ở việc giới thiệu và chốt giao dịch, mà mở rộng thành mối quan hệ đồng hành, nơi khách hàng được lắng nghe, thấu hiểu và nhận những lời khuyên mang tính định hướng dài hạn.

Trong bối cảnh đó, không gian kiến trúc không còn là phông nền trung tính cho hoạt động kinh doanh, mà trở thành một công cụ chiến lược để định hình tâm lý giao tiếp và xây dựng niềm tin.

Không gian và tâm lý giao tiếp

Trong môi trường môi giới bất động sản, nơi các quyết định tài chính mang tính dài hạn và có giá trị lớn, không gian giao tiếp đóng vai trò quan trọng trong việc định hình trạng thái tâm lý của khách hàng. Một môi trường làm việc chật chội, ồn ào thường tạo ra cảm giác bị thúc ép, khiến các cuộc trao đổi dễ rơi vào trạng thái phòng vệ và thiếu chiều sâu.

Ở chiều ngược lại, những không gian quá rộng rãi, hào nhoáng hoặc phô trương sự sang trọng lại vô tình hình thành một khoảng cách tâm lý. Khi yếu tố hình thức lấn át nội dung, mối quan hệ giữa người tư vấn và khách hàng dễ bị đặt trong bối cảnh giao dịch thuần túy, nơi cảm giác “money talk” chi phối trải nghiệm, kéo theo sự thận trọng và hoài nghi về giá trị thực của lời tư vấn.

Cả hai thái cực này, dù đối lập về hình thức, đều gây bất lợi cho việc hình thành niềm tin ở những bước đầu tiên. Từ nhận thức đó, thiết kế đặt ra một câu hỏi cốt lõi: liệu có thể tạo ra một không gian vừa đủ gần gũi để khuyến khích đối thoại, nhưng cũng đủ riêng tư để khách hàng cảm thấy an tâm khi chia sẻ những mong cầu mang tính cá nhân và tài chính?

Honey – khái niệm thiết kế

Câu trả lời được cụ thể hóa trong khái niệm thiết kế mang tên “Honey”. Đây là một cách chơi chữ mang nhiều tầng ý nghĩa. Trên bình diện hình học, Honey gợi nhắc đến cấu trúc tổ ong – một cấu trúc có tính hướng tâm, gắn kết và hiệu quả. Trên bình diện ngôn ngữ, “honey” còn là cách gọi thân mật trong giao tiếp đời thường, hàm ý về sự gần gũi, mềm mại và tính cá nhân trong mối quan hệ.

Tinh thần này được chuyển hóa thành một góc tư vấn với diện tích khoảng 5m², đóng vai trò như điểm giao tiếp quan trọng trong văn phòng. Không gian được tổ chức theo hình lục giác, cho phép tạo cảm giác quây quần và tập trung, đồng thời vẫn thuận lợi cho thi công và kết nối với các khu vực xung quanh. Với một bàn nhỏ và chiếc laptop đặt ở trung tâm, góc tư vấn đủ cho 3–4 người cùng tham gia một cuộc thảo luận ngắn, nơi khoảng cách vật lý được thu hẹp để tạo điều kiện cho sự trao đổi cởi mở và bình đẳng.

Gần gũi và riêng tư – một trạng thái cân bằng

Điểm then chốt của góc tư vấn Honey không nằm ở việc đóng kín không gian, mà ở trạng thái bán riêng tư. Các tường nhẹ kết hợp với dải cây xanh được sử dụng như một lớp đệm thị giác và tâm lý, giúp giảm cảm giác bị quan sát từ không gian làm việc chung, đồng thời tránh tạo ra sự cách ly hoàn toàn.

Sự hiện diện của cây xanh góp phần làm dịu nhịp độ không gian, mang lại cảm giác thư giãn và dễ chịu. Trong bối cảnh đó, khách hàng có xu hướng cởi mở hơn khi chia sẻ những mong muốn, băn khoăn và kỳ vọng của mình. Ngược lại, người tư vấn cũng có điều kiện lắng nghe sâu hơn và đưa ra những đề xuất phù hợp, mang tính đồng hành thay vì áp đặt.

Tổ chức không gian và dòng chảy sử dụng

Xoay quanh góc tư vấn là khu vực làm việc mở của nhân viên, được tổ chức đan xen với các bề mặt trưng bày bản đồ và sơ đồ định vị các dự án bất động sản. Những yếu tố đồ họa này không chỉ đóng vai trò cung cấp thông tin, mà còn gợi mở tư duy về vị trí, bối cảnh và giá trị dài hạn của mỗi sản phẩm – một yếu tố quan trọng trong quá trình tư vấn bất động sản cao cấp.

Khu vực pantry được bố trí ở một góc tương đối riêng tư nhưng vẫn nằm gần khu chào đón và góc tư vấn, tạo sự thuận tiện trong việc phục vụ cả khách hàng lẫn nhân viên mà không làm gián đoạn dòng chảy không gian.

Màu sắc, vật liệu và tinh thần tổng thể

Bảng màu chủ đạo của văn phòng xoay quanh xanh dương thương hiệu kết hợp với các sắc xanh lá, phản ánh xu hướng kết nối với thiên nhiên trong thiết kế không gian làm việc đương đại. Cách sử dụng màu sắc tiết chế, đồng nhất giúp tạo nên một nền thị giác dễ chịu, phù hợp với các cuộc trao đổi kéo dài và cường độ tập trung cao.

Vật liệu và ánh sáng được kiểm soát ở mức vừa phải, tránh sự bóng bẩy hay phô trương không cần thiết. Thay vào đó, thiết kế hướng đến một bầu không khí trẻ trung, năng động nhưng vẫn giữ được sự chuyên nghiệp và tin cậy.

Kết luận

Honey Office không tìm cách tái định nghĩa văn phòng bất động sản bằng quy mô hay sự xa hoa, mà bằng cách quay trở lại với bản chất của hoạt động tư vấn: đối thoại và niềm tin. Thông qua việc tổ chức một góc tư vấn có tỷ lệ vừa đủ, nơi sự gần gũi và riêng tư được cân bằng tinh tế, dự án cho thấy kiến trúc có thể đóng vai trò chủ động trong việc định hình mối quan hệ giữa con người với con người.

Trong bối cảnh thị trường bất động sản ngày càng phân hóa, thiết kế này gợi mở một hướng tiếp cận khác cho không gian làm việc: kiến trúc không chỉ là nơi diễn ra giao dịch, mà là môi trường nuôi dưỡng sự cởi mở, thấu hiểu và đồng hành dài hạn.

Scope: Architectural Interior Design and Build

Location: 18–20, Street No. 5, An Loi Dong Ward, Thu Duc City, Ho Chi Minh City, Vietnam

Area: 85 m2

Year: 2025

Client: Mr Dung- Mrs Hien

Design team: Luu Quoc Thinh, Nguyen Hong Ngoc, Pham Huy Phuoc

Site Supervision: Pham Huy Phuoc

Construction Cost: 450,000,000 VND

Thu Thiem Property

Redefining Spatial Communication in a Luxury Real Estate Office

When referring to a real estate brokerage office, many people instinctively imagine a hectic environment—crowded, transactional, and driven by urgency—where high-value properties are exchanged in an atmosphere closer to a trading floor than a place of dialogue. In many cases, such offices resemble condensed stock exchanges, where sales performance and staff density outweigh spatial experience and the quality of human interaction.

... However, the real estate brokerage industry is far from homogeneous. It spans multiple segments, from speculative freelance brokers and mass-market agents to large-scale trading floors and luxury real estate distributors. Within the high-end segment, the role of the consultant extends beyond selling a product; it becomes a relationship of accompaniment, where trust, listening, and long-term guidance form the foundation of decision-making.

In this context, architecture is no longer a neutral backdrop for business operations but a strategic tool that shapes psychological comfort and interpersonal communication.

Space and the Psychology of Communication

In real estate brokerage—where decisions are financially significant and long-term—the spatial environment plays a critical role in shaping users’ psychological states. Crowded and noisy workplaces often generate feelings of pressure and defensiveness, pushing conversations toward speed rather than depth.

At the opposite extreme, overly expansive, opulent, or ostentatious interiors can unintentionally create psychological distance. When visual grandeur dominates the experience, communication risks being framed purely as a financial transaction—where “money talk” overshadows genuine advisory value, leading to caution and skepticism rather than trust.

Despite their formal differences, both extremes hinder the formation of trust at the earliest stages of interaction. From this observation, the project raises a fundamental question: can a space be intimate enough to encourage open dialogue while remaining sufficiently private to make clients feel secure when discussing personal and financial aspirations?

Honey – A Design Concept

This question is addressed through the design concept named “Honey”. The term operates on multiple levels. Geometrically, it references the honeycomb structure—a system defined by cohesion, efficiency, and inward focus. Linguistically, “honey” is also a term of affection in everyday speech, evoking warmth, closeness, and personal connection.

This concept materializes in a consultation corner of approximately 5 square meters, conceived as a key point of interaction within the office. Organized in a hexagonal geometry, the space fosters a sense of enclosure and focus while remaining constructively efficient and easily integrated with surrounding areas. A small table and a centrally placed laptop accommodate three to four people for short discussions, subtly reducing physical distance and encouraging balanced, open exchange.

Balancing Intimacy and Privacy

The defining quality of the Honey consultation corner lies not in complete enclosure but in its semi-private condition. Lightweight partitions combined with bands of greenery act as visual and psychological buffers, softening the boundary between the consultation area and the open workspace without fully isolating it.

The presence of greenery helps moderate spatial rhythm and introduces a calming atmosphere. Within this environment, clients are more inclined to speak openly about their expectations, concerns, and long-term goals. In turn, consultants can listen more attentively and respond with tailored, advisory-driven proposals rather than prescriptive sales tactics.

Spatial Organization and Circulation

Surrounding the consultation corner is an open-plan working area for staff, interwoven with surfaces displaying maps and spatial diagrams that locate real estate projects within their broader urban context. These graphic elements function not only as informational tools but also as narrative devices, reinforcing the importance of location, context, and long-term value in luxury real estate decision-making.

The pantry is positioned in a relatively discreet corner while remaining close to both the reception and consultation areas, allowing for seamless hospitality without disrupting spatial flow.

Materiality, Color, and Overall Atmosphere

The office’s color palette is anchored by the brand’s signature blue, complemented by shades of green that reinforce a connection to nature—reflecting contemporary biophilic design principles. The restrained use of color creates a visually calm environment, suitable for extended discussions and focused work.

Materials and lighting are deliberately controlled, avoiding excessive gloss or unnecessary luxury. Instead, the space projects a youthful, dynamic character while maintaining professionalism and credibility.

Conclusion

Honey Office does not seek to redefine the real estate workplace through scale or extravagance, but by returning to the essence of advisory practice: dialogue and trust. By introducing a consultation space with carefully calibrated proportions—where intimacy and privacy coexist—the project demonstrates how architecture can actively shape relationships rather than merely host transactions.

In an increasingly segmented real estate market, the project proposes an alternative approach to workplace design: architecture not as a transactional setting, but as an environment that nurtures openness, understanding, and long-term partnership.

Hạng mục: Thiết kế thi công kiến trúc nội thất

Địa điểm: 18-20 đường số 5, phường An Lợi Đông, Thủ Đức, Hồ Chí Minh

Diện tích: 85 m2

Năm: 2025

Khách hàng: Anh Dũng – Chị Hiền

Nhóm thiết kế: Lưu Quốc Thịnh, Nguyễn Hồng Ngọc, Phạm Huy Phước

Giám sát công trường: Phạm Huy Phước

Chi phí: 450.000.000 VND

Scope: Architectural Interior Design and Build

Location: 18–20, Street No. 5, An Loi Dong Ward, Thu Duc City, Ho Chi Minh City, Vietnam

Area: 85 m2

Year: 2025

Client: Mr Dung- Mrs Hien

Design team: Luu Quoc Thinh, Nguyen Hong Ngoc, Pham Huy Phuoc

Site Supervision: Pham Huy Phuoc

Construction Cost: 450,000,000 VND

Thu Thiem Property

Tái định nghĩa cách không gian tạo nên giao tiếp trong một văn phòng bất động sản hạng sang

Nhắc đến một văn phòng môi giới bất động sản, không ít người sẽ hình dung về một khung cảnh xô bồ, nơi các sản phẩm có giá trị lớn được trao đổi trong bầu không khí gấp gáp và nặng tính giao dịch. Trong nhiều trường hợp, văn phòng môi giới mang dáng dấp của một sàn giao dịch chứng khoán thu nhỏ, nơi hiệu suất bán hàng và mật độ nhân sự lấn át trải nghiệm không gian và chất lượng tương tác giữa con người với con người.

Thu Thiem Property

Redefining Spatial Communication in a Luxury Real Estate Office

When referring to a real estate brokerage office, many people instinctively imagine a hectic environment—crowded, transactional, and driven by urgency—where high-value properties are exchanged in an atmosphere closer to a trading floor than a place of dialogue. In many cases, such offices resemble condensed stock exchanges, where sales performance and staff density outweigh spatial experience and the quality of human interaction.

Lối vào Entrance
Tuy nhiên, khi phân tích cấu trúc ngành nghề, môi giới bất động sản thực chất bao gồm nhiều phân khúc với những cách tiếp cận khách hàng hoàn toàn khác nhau: từ môi giới tự do mang tính chụp giật, môi giới phổ thông, sàn giao dịch quy mô lớn cho đến các nhà phân phối bất động sản hạng sang. Ở phân khúc cao cấp, vai trò của người tư vấn không dừng lại ở việc giới thiệu và chốt giao dịch, mà mở rộng thành mối quan hệ đồng hành, nơi khách hàng được lắng nghe, thấu hiểu và nhận những lời khuyên mang tính định hướng dài hạn.

Trong bối cảnh đó, không gian kiến trúc không còn là phông nền trung tính cho hoạt động kinh doanh, mà trở thành một công cụ chiến lược để định hình tâm lý giao tiếp và xây dựng niềm tin.

However, the real estate brokerage industry is far from homogeneous. It spans multiple segments, from speculative freelance brokers and mass-market agents to large-scale trading floors and luxury real estate distributors. Within the high-end segment, the role of the consultant extends beyond selling a product; it becomes a relationship of accompaniment, where trust, listening, and long-term guidance form the foundation of decision-making.

In this context, architecture is no longer a neutral backdrop for business operations but a strategic tool that shapes psychological comfort and interpersonal communication.

Không gian và tâm lý giao tiếp

Trong môi trường môi giới bất động sản, nơi các quyết định tài chính mang tính dài hạn và có giá trị lớn, không gian giao tiếp đóng vai trò quan trọng trong việc định hình trạng thái tâm lý của khách hàng. Một môi trường làm việc chật chội, ồn ào thường tạo ra cảm giác bị thúc ép, khiến các cuộc trao đổi dễ rơi vào trạng thái phòng vệ và thiếu chiều sâu.

Ở chiều ngược lại, những không gian quá rộng rãi, hào nhoáng hoặc phô trương sự sang trọng lại vô tình hình thành một khoảng cách tâm lý. Khi yếu tố hình thức lấn át nội dung, mối quan hệ giữa người tư vấn và khách hàng dễ bị đặt trong bối cảnh giao dịch thuần túy, nơi cảm giác “money talk” chi phối trải nghiệm, kéo theo sự thận trọng và hoài nghi về giá trị thực của lời tư vấn.

Cả hai thái cực này, dù đối lập về hình thức, đều gây bất lợi cho việc hình thành niềm tin ở những bước đầu tiên. Từ nhận thức đó, thiết kế đặt ra một câu hỏi cốt lõi: liệu có thể tạo ra một không gian vừa đủ gần gũi để khuyến khích đối thoại, nhưng cũng đủ riêng tư để khách hàng cảm thấy an tâm khi chia sẻ những mong cầu mang tính cá nhân và tài chính?

Space and the Psychology of Communication

In real estate brokerage—where decisions are financially significant and long-term—the spatial environment plays a critical role in shaping users’ psychological states. Crowded and noisy workplaces often generate feelings of pressure and defensiveness, pushing conversations toward speed rather than depth.

At the opposite extreme, overly expansive, opulent, or ostentatious interiors can unintentionally create psychological distance. When visual grandeur dominates the experience, communication risks being framed purely as a financial transaction—where “money talk” overshadows genuine advisory value, leading to caution and skepticism rather than trust.

Despite their formal differences, both extremes hinder the formation of trust at the earliest stages of interaction. From this observation, the project raises a fundamental question: can a space be intimate enough to encourage open dialogue while remaining sufficiently private to make clients feel secure when discussing personal and financial aspirations?

Khu vực chào đón Welcome Zone
Honey – khái niệm thiết kế

Câu trả lời được cụ thể hóa trong khái niệm thiết kế mang tên “Honey”. Đây là một cách chơi chữ mang nhiều tầng ý nghĩa. Trên bình diện hình học, Honey gợi nhắc đến cấu trúc tổ ong – một cấu trúc có tính hướng tâm, gắn kết và hiệu quả. Trên bình diện ngôn ngữ, “honey” còn là cách gọi thân mật trong giao tiếp đời thường, hàm ý về sự gần gũi, mềm mại và tính cá nhân trong mối quan hệ.

Tinh thần này được chuyển hóa thành một góc tư vấn với diện tích khoảng 5m², đóng vai trò như điểm giao tiếp quan trọng trong văn phòng. Không gian được tổ chức theo hình lục giác, cho phép tạo cảm giác quây quần và tập trung, đồng thời vẫn thuận lợi cho thi công và kết nối với các khu vực xung quanh. Với một bàn nhỏ và chiếc laptop đặt ở trung tâm, góc tư vấn đủ cho 3–4 người cùng tham gia một cuộc thảo luận ngắn, nơi khoảng cách vật lý được thu hẹp để tạo điều kiện cho sự trao đổi cởi mở và bình đẳng.

Honey – A Design Concept

This question is addressed through the design concept named “Honey”. The term operates on multiple levels. Geometrically, it references the honeycomb structure—a system defined by cohesion, efficiency, and inward focus. Linguistically, “honey” is also a term of affection in everyday speech, evoking warmth, closeness, and personal connection.

This concept materializes in a consultation corner of approximately 5 square meters, conceived as a key point of interaction within the office. Organized in a hexagonal geometry, the space fosters a sense of enclosure and focus while remaining constructively efficient and easily integrated with surrounding areas. A small table and a centrally placed laptop accommodate three to four people for short discussions, subtly reducing physical distance and encouraging balanced, open exchange.

Khu vực tư vấn Consulting Zone
Gần gũi và riêng tư – một trạng thái cân bằng

Điểm then chốt của góc tư vấn Honey không nằm ở việc đóng kín không gian, mà ở trạng thái bán riêng tư. Các tường nhẹ kết hợp với dải cây xanh được sử dụng như một lớp đệm thị giác và tâm lý, giúp giảm cảm giác bị quan sát từ không gian làm việc chung, đồng thời tránh tạo ra sự cách ly hoàn toàn.

Sự hiện diện của cây xanh góp phần làm dịu nhịp độ không gian, mang lại cảm giác thư giãn và dễ chịu. Trong bối cảnh đó, khách hàng có xu hướng cởi mở hơn khi chia sẻ những mong muốn, băn khoăn và kỳ vọng của mình. Ngược lại, người tư vấn cũng có điều kiện lắng nghe sâu hơn và đưa ra những đề xuất phù hợp, mang tính đồng hành thay vì áp đặt.

Balancing Intimacy and Privacy

The defining quality of the Honey consultation corner lies not in complete enclosure but in its semi-private condition. Lightweight partitions combined with bands of greenery act as visual and psychological buffers, softening the boundary between the consultation area and the open workspace without fully isolating it.

The presence of greenery helps moderate spatial rhythm and introduces a calming atmosphere. Within this environment, clients are more inclined to speak openly about their expectations, concerns, and long-term goals. In turn, consultants can listen more attentively and respond with tailored, advisory-driven proposals rather than prescriptive sales tactics.

Khu vực làm việc Working Zone
Tổ chức không gian và dòng chảy sử dụng

Xoay quanh góc tư vấn là khu vực làm việc mở của nhân viên, được tổ chức đan xen với các bề mặt trưng bày bản đồ và sơ đồ định vị các dự án bất động sản. Những yếu tố đồ họa này không chỉ đóng vai trò cung cấp thông tin, mà còn gợi mở tư duy về vị trí, bối cảnh và giá trị dài hạn của mỗi sản phẩm – một yếu tố quan trọng trong quá trình tư vấn bất động sản cao cấp.

Khu vực pantry được bố trí ở một góc tương đối riêng tư nhưng vẫn nằm gần khu chào đón và góc tư vấn, tạo sự thuận tiện trong việc phục vụ cả khách hàng lẫn nhân viên mà không làm gián đoạn dòng chảy không gian.

Spatial Organization and Circulation

Surrounding the consultation corner is an open-plan working area for staff, interwoven with surfaces displaying maps and spatial diagrams that locate real estate projects within their broader urban context. These graphic elements function not only as informational tools but also as narrative devices, reinforcing the importance of location, context, and long-term value in luxury real estate decision-making.

The pantry is positioned in a relatively discreet corner while remaining close to both the reception and consultation areas, allowing for seamless hospitality without disrupting spatial flow.

Khu vực bếp soạn Pantry Zone
Màu sắc, vật liệu và tinh thần tổng thể

Bảng màu chủ đạo của văn phòng xoay quanh xanh dương thương hiệu kết hợp với các sắc xanh lá, phản ánh xu hướng kết nối với thiên nhiên trong thiết kế không gian làm việc đương đại. Cách sử dụng màu sắc tiết chế, đồng nhất giúp tạo nên một nền thị giác dễ chịu, phù hợp với các cuộc trao đổi kéo dài và cường độ tập trung cao.

Vật liệu và ánh sáng được kiểm soát ở mức vừa phải, tránh sự bóng bẩy hay phô trương không cần thiết. Thay vào đó, thiết kế hướng đến một bầu không khí trẻ trung, năng động nhưng vẫn giữ được sự chuyên nghiệp và tin cậy.

Materiality, Color, and Overall Atmosphere

The office’s color palette is anchored by the brand’s signature blue, complemented by shades of green that reinforce a connection to nature—reflecting contemporary biophilic design principles. The restrained use of color creates a visually calm environment, suitable for extended discussions and focused work.

Materials and lighting are deliberately controlled, avoiding excessive gloss or unnecessary luxury. Instead, the space projects a youthful, dynamic character while maintaining professionalism and credibility.

Khu vực lưu trữ Locker Zone
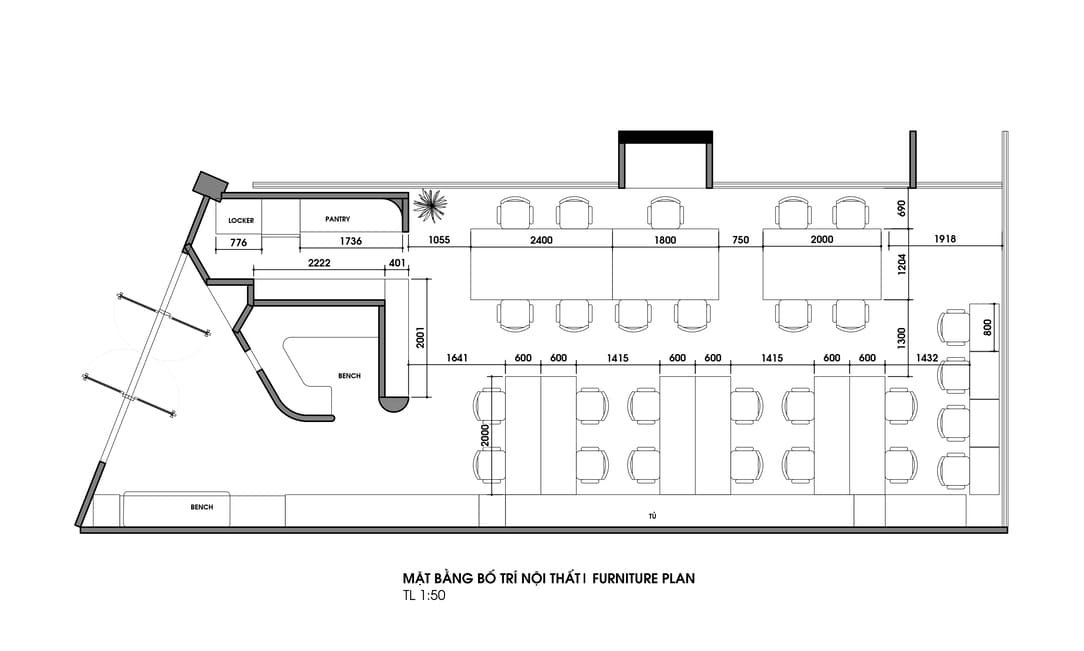
Bản vẽ Drawing
Kết luận

Honey Office không tìm cách tái định nghĩa văn phòng bất động sản bằng quy mô hay sự xa hoa, mà bằng cách quay trở lại với bản chất của hoạt động tư vấn: đối thoại và niềm tin. Thông qua việc tổ chức một góc tư vấn có tỷ lệ vừa đủ, nơi sự gần gũi và riêng tư được cân bằng tinh tế, dự án cho thấy kiến trúc có thể đóng vai trò chủ động trong việc định hình mối quan hệ giữa con người với con người.

Trong bối cảnh thị trường bất động sản ngày càng phân hóa, thiết kế này gợi mở một hướng tiếp cận khác cho không gian làm việc: kiến trúc không chỉ là nơi diễn ra giao dịch, mà là môi trường nuôi dưỡng sự cởi mở, thấu hiểu và đồng hành dài hạn.

Conclusion

Honey Office does not seek to redefine the real estate workplace through scale or extravagance, but by returning to the essence of advisory practice: dialogue and trust. By introducing a consultation space with carefully calibrated proportions—where intimacy and privacy coexist—the project demonstrates how architecture can actively shape relationships rather than merely host transactions.

In an increasingly segmented real estate market, the project proposes an alternative approach to workplace design: architecture not as a transactional setting, but as an environment that nurtures openness, understanding, and long-term partnership.

Honey Office